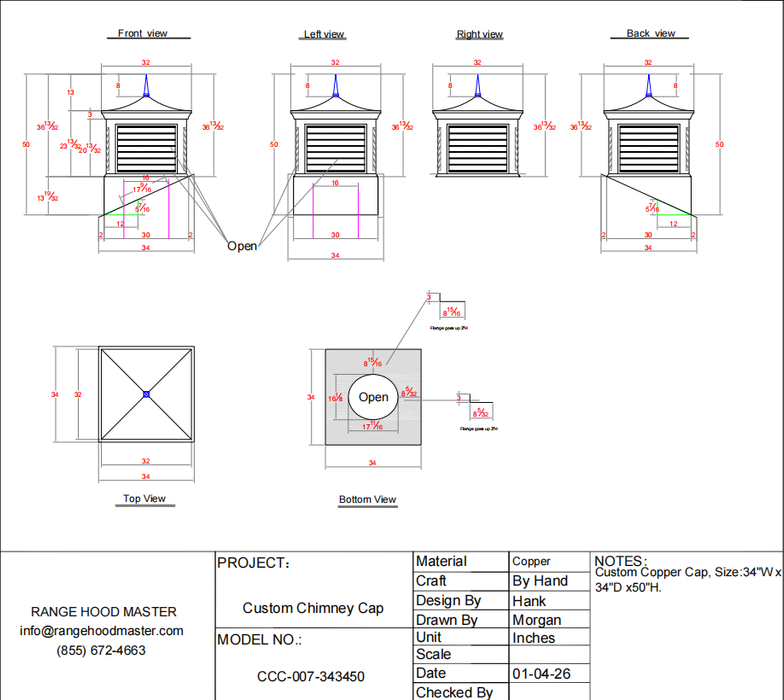
Custom Copper Chimney Cap CCC-007 for Viktoras
Buying Guides
Click here to know more.
Custom Consulation
Contact us if you need a custom dimension for your hood.
Why won't the website images change when I select a different finish or material?
Yes, they won't change as all the range hoods on our website are real-life images with no additional editing to truly reflect the high quality. You can place your order online with your selection first, and add order notes in the cart for any special designs.
Once we receive your order, we can provide you with the rendering or preview artwork based on your selected color scheme. The finish and design can also be adjusted during the drawing approval stage.
Why 11" deep FS inserts are not recommended
It is not recommended to use the FS internal motor hood ventilation (11'' deep) as it is less than 18'' deep, which will affect the hood exhaust performance in the kitchen due to the limited coverage area above the stove, and it will also be noisier due to the smaller space. The blower may struggle to draw in air efficiently without adequate space for proper air circulation, leading to decreased performance.
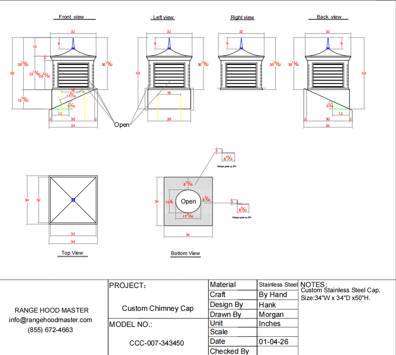
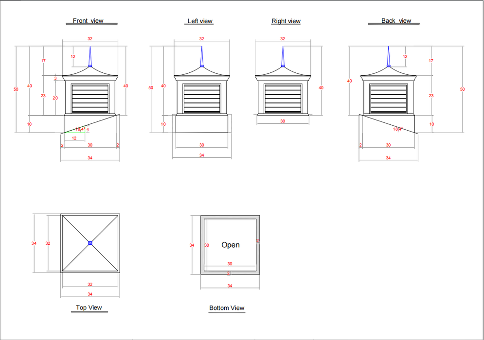
Custom Copper Chimney Cap CCC-007
- 16 gauge
- body finish: Standard Color Finish
- 34" Width x 34"Length x 50''Height, top mounted
- Standard free shipment (about 8-11 weeks upon the CAD drawing approved)

